新型一體式保溫法蘭式球閥設計規范
							2022-02-21 09:44:52
                                                                    							
    								
    								48    							
                            						
					
新型一體式保溫法蘭式球閥設計規范背景技術:
在溫度較低的環境下使用球閥,容易出現受凍等問題,這直接導致球閥無法進行工作。發明內容本實用新型的目的就是為了解決上述問題,提供一種新型保溫球閥。為了實現上述目的,本實用新型采用如下技術方案:一種新型保溫球閥,其具有:閥體,其內設球體,閥體安裝有與球體連接的閥桿,其特征在于,所述閥體外殼依次設有聚苯乙烯泡沫塑料層、空氣層以及膨脹珍珠巖層。本實用新型的有益效果是:外部防護結構能夠有效的保證球閥不至于外部溫度過低而影響自身的工作。一體式保溫球閥是在球閥的基礎上焊裝金屬夾套,用于注入蒸汽或其它保溫、保冷介質,確保閥內介質能夠正常工作。具有良好的保溫保冷特性,且閥門的通徑與管徑一致,同時又能有效降低管路中介質熱量損失。保溫夾套球閥采用整體式夾套結構設計,更能均勻地保溫、保冷,保溫球閥比一般球閥體積更小,重量更輕,且無外漏,密封性能良好,夾套采用碳素鋼管焊接比鑄造的更加耐壓牢固。 夾套、閥體外側與夾套接管焊接,允許蒸汽或冷水的壓力為1MPa。
一體式保溫球閥產品特點:
1、一體式保溫球閥具有良好的保溫保冷特性,且閥門的通徑與管徑一致,同時又能有效降低管 路中介質熱量損失。
2、應用廣泛主要用于石油、化工、冶金、制藥、食品等各類系統中,以輸送常溫下會凝固的高粘度介質。
3、由于采用整體式結構,因而保溫球閥比一般球閥體積更小,重量更輕,且無外漏,密封性能良好,夾套采用碳素鋼管焊接比鑄造的更加耐壓牢固。
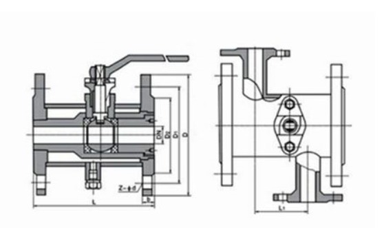
新型保溫球閥結構示意圖。,
,新型一體式保溫法蘭式球閥設計規范主要部件材料,一體式保溫球閥密封材料選擇, 
,新型一體式保溫法蘭式球閥設計規范具體實施方式為了使本實用新型實現的技術手段、創作特征、達成目的與功效易于明白了解,下面結合具體圖示,進一步闡述本實用新型。如圖1所示,一種新型保溫球閥,其具有:閥體10,其內設球體11,閥體安裝有與球體連接的閥桿12,所述閥體外殼依次設有聚苯乙烯泡沫塑料層13、空氣層14以及膨脹珍珠巖層15,該防護結構整體設置于整個球閥殼體之上,防護效果較佳,而且,在高溫環境下,不影響球閥內部流體。以上所述僅為本實用新型的優選實施方式,本實用新型的保護范圍并不于上述實施方式,凡是屬于本實用新型原理的技術方案均屬于本實用新型的保護范圍。對于本領域的技術人員而言,在不脫離本實用新型的原理的前提下進行的若干改進,這些改進也應視為本實用新型的保護范圍。,

新型一體式保溫法蘭式球閥設計規范權利要求1.,上海申弘閥門有限公司主營閥門有:截止閥,電動截止閥一種新型保溫球閥,其具有:閥體,其內設球體,閥體安裝有與球體連接的閥桿,其特征在于,所述閥體外殼依次設有聚苯乙烯泡沫塑料層、空氣層以及膨脹珍珠巖層。
摘要本實用新型公開了一種新型保溫球閥,其具有閥體,其內設球體,閥體安裝有與球體連接的閥桿,其特征在于,所述閥體外殼依次設有聚苯乙烯泡沫塑料層、空氣層以及膨脹珍珠巖層。本實用新型的有益效果是外部防護結構能夠有效的保證球閥不至于外部溫度過低而影響自身的工作。,

新型一體式保溫法蘭式球閥設計規范具有以下優點:
1. 保溫球閥流體阻力小,其阻力系數與同長度的管段相等。
2. 保溫球閥結構簡單、體積小、重量輕。
3. 緊密可靠,目前球閥的密封面材料廣泛使用塑料、密封性好,在真空系統中也已廣泛使用。
4. 保溫球閥操作方便,開閉迅速,從全開到全關只要旋轉90°,便于遠距離的控制。
5. 維修方便,球閥結構簡單,密封圈一般都是活動的,拆卸更換都比較方便。
6. 在全開或全閉時,球體和閥座的密封面與介質隔離,介質通過時,不會引起閥門密封面的侵蝕。
7. 保溫球閥適用范圍廣,通徑從小到幾毫米,大到幾米,從高真空至高壓力都可應用。與本文相關的論文:自力式煤氣調壓閥組